Игровая мебель
Кровати
Стенки, стеллажи и шкафы
Столы и стулья
Фотогалерея
Прайс-лист
ГОСТы по детской мебели
Контакты
|
ГОСТыГОСТы по детской мебелиГОСТ 26682-85 Группа К25
ГОСУДАРСТВЕННЫЙ СТАНДАРТ СОЮЗА ССР
МЕБЕЛЬ ДЛЯ ДОШКОЛЬНЫХ УЧРЕЖДЕНИЙ
Функциональные размеры
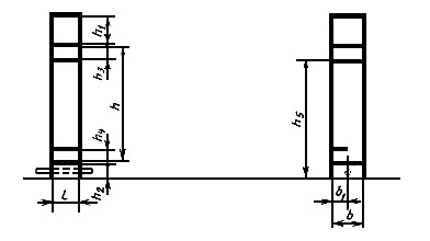
ОКП 56 2300 Срок действия с 01.01.87 до 01.01.92* _____________________________ * Ограничение срока действия снято постановлением Госстандарта СССР от 27.12.91 N 2193 (ИУС N 4, 1992 год). РАЗРАБОТАН Государственным комитетом по гражданскому строительству и архитектуре при Госстрое СССР Министерством просвещения СССР Министерством здравоохранения СССР ИСПОЛНИТЕЛИ Г.Н.Цытович, О.А.Барханова, Т.М.Вельк, Н.М.Браиловская, Н.В.Михеева, Я.В.Владимиров, Г.Н.Сердюковская, Г.А.Шаршаткина ВНЕСЕН Министерством лесной, целлюлозно-бумажной и деревообрабатывающей промышленности СССР Зам. министра В.М.Венцлавский УТВЕРЖДЕН И ВВЕДЕН В ДЕЙСТВИЕ Постановлением Государственного комитета СССР по стандартам от 16 декабря 1985 г. N 4002 ВНЕСЕНА поправка, опубликованная в ИУС N 11, 1987 год 1. Настоящий стандарт распространяется на мебель для дошкольных учреждений и устанавливает функциональные размеры столов туалетно-пеленальных и туалетно-массажных; шкафов для детской одежды и белья, игрушек, пособий, горшков; скамей для одевания; манежей, барьеров; вешалок для полотенец, а также столов сервировочных; шкафов для одежды и табуретов для персонала, шкафов для хозяйственного инвентаря, шкафов под мойку и для хранения посуды. 2. Функциональные размеры столов должны соответствовать указанным на черт.1-4 и в табл.1. Стол туалетно-пеленальный
Черт.1 Стол туалетно-массажный с выдвижной секцией для хранения комплектов детской одежды
Черт.2 Выдвижная секция туалетно-массажного стола для хранения комплектов детской одежды
Черт.3 Стол сервировочный
Черт.4 Таблица 1 мм
2.1. Сервировочный стол должен иметь с торца ручки на высоте от пола, равной не менее 450 и 700 мм. 2.2. Внутренние размеры ящика для предметов ухода за грудными детьми в туалетно-массажном столе должны соответствовать указанным на черт.5. Ящик для предметов ухода за грудными детьми
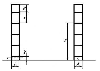
Черт.5 3. Функциональные размеры шкафов для детской одежды, одежды для персонала, шкафов для хозяйственного инвентаря, для горшков должны соответствовать указанным на черт.6-11 и в табл.2. Шкаф для детской одежды (до 9 мес. включ.)
Черт.6 (до 3 лет включ.)
Черт.7 Шкаф для детской одежды (от 3 до 7 лет включ).
Черт.8 Шкаф для одежды персонала
Черт.9 Шкаф для хозяйственного инвентаря
Черт.10 Шкаф для горшков
Черт.11 Таблица 2 мм
3.1. Расстояние между крючками, а также между крючками и ограничивающими элементами в шкафах для одежды персонала - по ГОСТ 13025.1-85. При хранении пальто на плечиках расстояние от пола до верхней кромки штанги - по ГОСТ 13025.1-85. 3.2. Высота отделения для хранения одежды персонала - по ГОСТ 13025.1-85. 3.3. Объемы, необходимые для хранения игрушек и пособий, в зависимости от возраста детей, должны соответствовать указанным в табл.3. Таблица 3
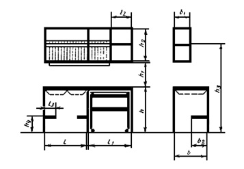
3.4. Ширина шкафа для игрушек и пособий - не менее 400 мм. Расстояние между полками - не менее 250 мм. 3.5. В шкафах для игрушек и пособий расстояние от пола до верхней плоскости полки не более: для детей до 4 лет включ. - 900 мм; св. 4 лет до 6 лет включ. - 1000 мм; от 6 лет до 7 лет включ. - 1150 мм; для персонала в шкафу для пособий - 1900 мм. Высота от пола до нижней поверхности щита - не менее 45 мм. 3.6. Размер отделения для хранения индивидуальных комплектов одежды должен быть не менее 190х120х400 мм. Полезный объем отделений для индивидуальных комплектов одежды должен быть: для групп детей ясельного возраста - не менее 0,18 м ; для групп детского сада - не менее 0,23 м . 3.7. Размер отделения для хранения белья должен быть не менее 450х260х400 мм. Полезный объем отделений для белья должен быть не менее 0,5 м . 3.8. Высота от пола до верхней плоскости полки шкафа для индивидуальных комплектов одежды и белья не должна превышать 1900 мм. 4. Функциональные размеры секций шкафов под мойку и для хранения посуды должны соответствовать указанным на черт.12 и в табл.4. Шкаф под мойку и для хранения посуды
Черт.12 Таблица 4 мм
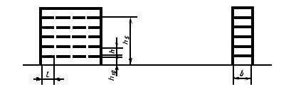
5. Функциональные размеры скамьи для одевания должны соответствовать указанным на черт.13 и в табл.5. Скамья для одевания
Черт.13 Таблица 5 мм
6. Функциональные размеры табурета для персонала: высота - 300 мм, ширина и длина сиденья - не менее 320 мм. 7. Функциональные размеры общего манежа и барьера должны соответствовать указанным на черт.14-16 и в табл.6. Манеж общий (с 2 до 5 мес.)
Черт.14 (с 5 до 9 мес.)
Черт.15 Барьер
Черт.16 Таблица 6 мм
7.1. Диаметр вертикальных и горизонтальных перекладин должен быть равен 10-15 мм. 8. Функциональные размеры вешалки для полотенец должны соответствовать табл.7 и черт.17 и 18. Таблица 7 мм
Вешалка настенная
Черт.17 Вешалка напольная
Черт.18 Текст документа сверен по: официальное издание М.: Издательство стандартов, 1986 |































